Ristrutturazione residenziale a Bergamo
La vita che cambia, gli spazi che evolvono e la casa che si adatta alle nuove esigenze.
Ivan e Nicoletta ci hanno contattate per trasformare e personalizzare la loro casa, in cui vivevano da oltre 30 anni. Infatti, le loro esigenze erano cambiate e avevano la necessità di rendere gli ambienti più contemporanei e conviviali.
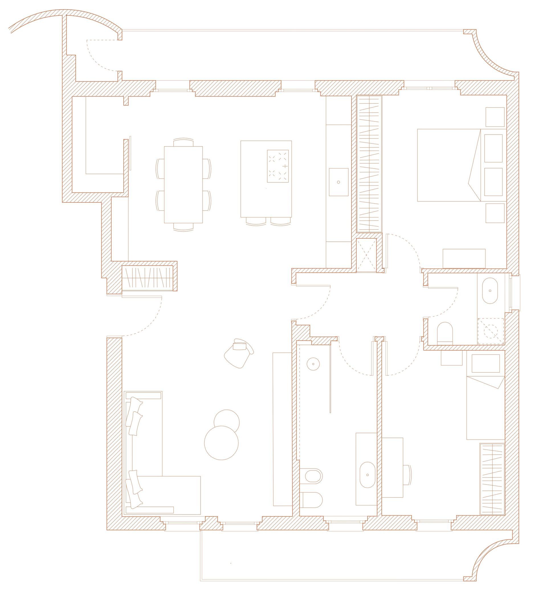
In Nuove forme la parete di divisione della camera del figlio viene abbattuta per dare spazio alla cucina con isola e viene incorporata alla zona giorno, cuore dell’appartamento, che diventa il luogo in cui ospitare amici, figli e nipotini.
La luce è protagonista; partendo dal lampadario dalle linee contemporanee sopra il tavolo della cucina, passando per il neon all’ingresso, fino a quella naturale, sempre presente per tutto il soggiorno.
Informazioni tecniche sulla ristrutturazione:
Luogo della ristrutturazione: Bergamo, 2022 || Metratura dell’immobile: 90 mq
Progetto e styling:
MID architettura
||
Fotografia:
Lacor Studio
Prima e dopo

Le parole di Ivan e Nicoletta
"La decisione di rinnovare la propria casa dopo 30 anni, durante i quali hai vissuto tutti gli eventi della tua vita, non è facile.
Le incognite sono molte ed i dubbi ancor di più.
L’incontro con Arianna e Giulia, con la professionalità che le contraddistingue e con la forza delle loro idee innovative, ha dissipato tutte le perplessità e soprattutto ci ha evitato l’ottenimento di un risultato copia di quanto già avevamo.
Equilibrio, innovazione e preparazione specifica, sono gli ingredienti aggiunti da Giulia e Arianna alla nostra volontà di cambiamento.
I nostri ospiti rimangono sinceramente molto colpiti dall’armonia degli spazi e dalla qualità delle scelte applicate.
La nostra casa racconta di Noi proiettati nel futuro."


























































































