Ristrutturazione residenziale in provincia di Bergamo
La cascina riprende vita
Un luogo dove lasciare sullo zerbino il lavoro e i ritmi frenetici della metropoli.
Abbiamo trasformato un vecchio cascinale degli anni ‘50, incastonato nella campagna bergamasca, in un rifugio confortevole dove rilassarsi con la propria famiglia, godere degli affetti e creare i propri ricordi di fronte ad un focolare. Lavorare con Maria Luisa e Daniele è stato facile: le idee erano sempre condivise e le proposte accolte.
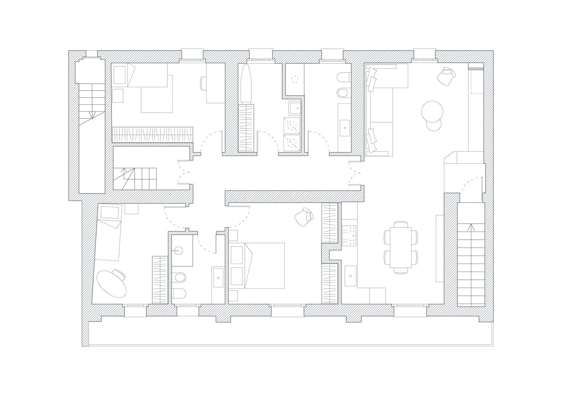
Il lavoro di ristrutturazione è stato radicale e, oltre alla definizione del nuovo layout distributivo, ha comportato opere strutturali, impiantistiche e di efficientamento energetico, ossia: il taglio del solaio per creare la doppia altezza, alcuni rinforzi strutturali, il rifacimento del tetto, la creazione di ampi lucernari, l’installazione di pannelli solari e la realizzazione di un cappotto termico interno.
Questo progetto ha reso la casa più contemporanea e funzionale per una giovane famiglia. Un elemento prezioso è sicuramente la doppia altezza della zona giorno che garantisce la presenza della luce naturale zenitale proveniente dai lucernari che estende gli spazi.
Informazioni tecniche sulla ristrutturazione:
Luogo della ristrutturazione: Mozzanica, 2021 || Metratura dell’immobile: 120 mq
Progetto e styling:
MID architettura
||
Fotografia:
Roy Bisschops
Prima e dopo

Le parole di Maria Luisa e Daniele
“È bastato un attimo per entrare in sintonia con Arianna e Giulia grazie alle loro idee fresche e alla capacità di interpretare le nostre esigenze. Hanno saputo studiare sapientemente gli spazi, ci hanno guidato nella ricerca di finiture e arredi con consigli mai banali, hanno seguito passo passo il cantiere rispettando budget e tempi di consegna.
Se ripensiamo allo stato in cui si trovava la casa…il risultato è davvero sbalorditivo! Chiunque entra in casa nostra ci riempie di complimenti e questo ci rende molto fieri!"

























































































